佛山市生态环境局受理地铁4号线一期工程环评报告计划年内开建
据介绍,佛山地铁四号线一期工程串联三水区、禅城区和南海区,北起三水区北江大道,经西青大道、广海大道东、科技路、佛山西站,下穿潭洲水道,经绿岛湖再次下穿潭洲水道后,经季华路下穿平洲水道至平胜工业区,沿三龙湾大道最后到达港口路。
佛山地铁四号线.91公里,高架段5.17公里,共设33座车站(地下站30座、高架站3座),其中换乘站13座,平均站间距约1.71公里,最大站间距3.93公里,为东交公园至莲子塘区间。最小站间距0.98公里,为科普中路至小坑尾区间。全线共设置停车场一座,车辆段一座。项目设计最高时速为100公里,采用6辆编组B型车。
环评报告显示,该线次换乘)、三号线次换乘)、五号线、六号线、七号线、八号线、十号线、十一号线、十二号线、十四号线换乘,并衔接佛山西站等佛山市铁路客运站,有助于实现交通设施一体化及交通设施共享。该项目串联了西南组团、狮山组团、中心城区,有助于加强组团、副中心与主城区的交通联系,是缓解主城区内部交通压力,带动三水西南街道和南海平胜、三山新城片区快速发展的东西向骨干线。
环评报告认为,该工程的实施将对环境产生一定程度的不利影响,但通过执行减振、降噪及废气、污水、固体废物处理处置等一系列防治措施,以及其他的管理、制度措施,可以得到缓解和控制,“从环境保护角度分析,本工程的建设是可行的”。
北江大道站是佛山四号线第一个车站,车站位于北江大道与西青大道交叉口处,沿西青大道东西向敷设。车站周边主要为时代廊桥花园、时代城3期、鸿安花园、汇信华府等居住建筑。
西青大道站为佛山四号线的第二座车站,车站站位设于西青大道、广海大道西与口岸大道交叉口处,沿西青大道及广海大道西呈东西走向敷设于道路下方。周边现状主要有锦盈嘉园小区及新动力广场,位于路口西南侧;柏安大酒店及广海海鲜市场位于路口东南侧;布心小学位于路口东北侧;西北侧现为城市绿地。
三水医院站为佛山四号线的第三座车站,与远期规划的十二号线节点换乘,四号线车站设于广海大道西与贤兴路的交叉路口处,沿广海大道西呈东西走向敷设于道路下方。周边现状主要有碧桂园三水华府及居住小区,三水汽车站、三水人民医院。
西南街道站为佛山四号线的第四座车站,车站位于健力宝路与广海大道中路交叉口处,沿广海大道中路呈东西走向敷设于道路下方。周边现状主要有健力宝公司(近期要拆除,地块建设成商业综合体),位于路口西南侧;三水供电局位于路口东南侧;花园酒店位于路口西北侧;西南街康乐社区位于路口东北侧。
东交公园站为佛山四号线的第五座车站,车站位于广海大道上,沿广海大道东西向设置。周边现状主要有恒丰豪庭、三水奥林匹克花园、三江府,位于车站北侧;广茂铁路及铁路防护绿地位于车站南侧,铁路南侧是汇景苑、沙头安置房、三水福利院。
莲子塘站为佛山四号线的第六座车站,车站位于西二环高速东侧广海大道上,为高架站。车站周边现状主要为村庄、厂房。
新城医院站为佛山四号线的第七座车站,车站位于广海大道与新塘一路交叉口,为高架站。车站周边现状主要为村庄、厂房。
大江社村站为佛山四号线的第八座车站,车站位于规划滨湖路与规划路交叉路口西南侧,为高架站。车站周边现状主要为村庄、农田、鱼塘等。
狮山北站为佛山四号线第九座车站,车站位于纬二路东侧、纬二路的交叉口,沿纬二路呈东西方向敷设于道路下方。车站周边目前处于开发状态,主要是施工场地。
博爱路站为四号线一期工程第十座车站,车站位于博爱路与科技路交叉口处,与规划八号线换乘。四号线呈南北向敷设于科技路下方,八号线呈东西向敷设于博爱路下方。现状站址周边地块正在开发建设中:西南侧为依云曦城、西北侧为凯旋名门、东北侧为奥园广场、东南侧为长华国际商业中心。
科技西路站是佛山四号线第十一座车站。车站位于科技西路与学府路交叉路口下方,沿科技西路南北向敷设。科技西路规划道路宽 40m,现状已实施,学府路规划宽 20m,现状已实施。车站周边主要建筑有:穆天子山庄、恒大翡翠华庭、保利茉莉公馆。
科普中路站是佛山四号线第十二个车站,车站位于佛山市南海区科普中路与科技东路交叉口处,沿科技东路东西向敷设。车站周边现为雪莱特光电科技有限公司、构想板业公司、先达货架有限公司、友达宠物用品有限公司等。
小坑尾站为四号线一期工程第十三座车站,车站位于科技东路与规划科宝南路交叉口处,沿科学东路呈东西向布置。
四号线佛山西站作为佛山西站地下空间同步实施工程已完成设计,并已经通过佛山三号线的初步设计审查,目前已进入土建施工阶段。车站位于铁路佛山西站站房正下方,两线平行设置,三、四号线站台均设置于地下二层,均为 13.6m宽岛式站台,两站台间设置过轨换乘通道进行连接,地下一层为两站共用付费区及非付费区,两站同时实施。
下柏站为四号线一期工程第十五座车站,车站位于工业大道中与规划路交叉口南侧,沿规划路呈南北向布置。
罗务路站是佛山四号线第十六个车站,车站位于罗务路西侧规划道路下,沿规划路南北向敷设。车站周边主要鱼塘、厂房以及住宅建筑。
绿岛湖北站为佛山四号线的第十七座车站,车站位设于弘德北路与禅港路交叉口东侧,沿弘德北路呈南北向敷设于道路与地块下方。车站附近现状:东北侧为在建佛山市第二人民医院,西北侧规划为商业用地、现状为空地,西南侧规划为居住用地、现状为空地,东南侧规划为佛山二中新校区、现状为空地且有高压塔线)绿岛湖中站
绿岛湖中站为四号线一期工程第十八座车站,车站位于禅港路与科润路交叉口西侧,与规划七号线换乘。四号线沿科润路呈东西向敷设,七号线沿禅港路呈南北向敷设。车站周边现状南侧为绿岛湖东区高新技术产业园、涟岸居住小区等,北侧有南方电网变电站。
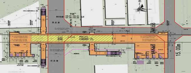
四号线莲塘站作为佛山二号线同步实施工程已通过初步设计评审,目前正在施工中。莲塘站二号线和四号线站位位于佛开高速与季华二路交叉口西侧,呈东西向布置。二号线线路位于季华二路中间,四号线位于二号线两侧,两线均为地下两层岛式车站,站台宽度均为 12m,两线为同台换乘。车站外包总长 279.55m,标准段宽 40.7m,总建筑面积 26046m 2 。
本站位于禅城区季华二路与禅西大道交叉路口,呈东西向布置。本站为二、四号线双岛四线同站台的换乘形式,其中二号线车站线路位于中间,四号线线路位于两侧,站厅采用共用站厅的形式;车站双岛的有效站台宽度皆为 13 米,有效站台长度为118米。车站外包总长206m,标准段宽50.3m,总建筑面积25374m 2 。本站共 4 个出入口,分别设置在季华二路南北两侧,可以充分吸引两侧的客流,并兼顾过街的功能。设 4 组风亭组分别位于车站的南北两端,西南端设一组冷却佛山市城市轨道交通四号线一期工程塔。
江湾路站是佛山四号线第二十一个车站,车站位于江湾路与季华三路交叉口处,四号线沿季华三路呈东西向敷设,五号线沿江湾路呈南北向敷设。站位周边主要建筑物有江湾路跨线桥、中国陶瓷城、蓝澳酒店、盈柏酒店、石湾客运站、佛山电缆厂等。
佛山大道站为佛山四号线的第二十二座车站,车站位设于车站位于佛山大道与季华四路交叉口西侧,沿季华四路南侧呈东西走向敷设于道路下方。车站周边现状主要有创意产业园园区及季华美食城位于季华四路北侧;季华四路南侧为雄盛王府广场;西南象限现状为一层建筑,以及沿街附近的低矮单层商铺,在该处放置车站附属条件较好。季华四路路中及道路南侧道路下方控制性管线kv 及以上高压管线(沟)为主, 后期车站实施阶段需重点关注管线迁改问题。车站四周均为商业及居住区,人流密集,出入口最大程度的吸引客流并兼顾地下通道的过街功能。
季华园站为佛山四号线的第二十三座车站,车站位于汾江南路与季华五路交叉口东侧,上跨一号线隧道后设站,车站位于季华公园园区内,车站主体沿季华五路呈东西向敷设。道路交汇处有下穿市政隧道(汾江南隧道),车站南侧现状为季华园公园园区;季华五路北侧为金海广场,以商业,居住为主,客流量较大,车站实施考虑汾江南隧道沿季华五路设置、广佛线(一号线)隧道等因素。
文华公园站是佛山四号线第二十四座车站,车站位于岭南大道与季华五路交叉口东侧文华公园内,呈东西向敷设。车站东南象限为文华公园及佛山电视塔,西南象限为印象城商业、名雅豪庭等居住区以及禅城区财政局等;西北象限为万科金融中心、佛山健翔颈腰医院等,东北象限为佛山岭南明珠体育馆等。
四号线季华六路站作为佛山三号线同步实施工程已通过初步设计评审,目前正在施工中。车站位于朝安南路与季华六路交叉口处,沿季华六路呈东西向敷设,为地下二层双岛四线车站,是三、四号线的同台换乘站,三号线在中间,四号线在两侧。本站两个岛式站台宽度均为 13m,车站外包总长 188.5m,标准段宽 49.7m,总建筑面积 23021m 2 。本站在季华六路两侧共设置 4 个出入口,能较好地吸引周边客流,同时兼顾市政过街功能。
石肯站为佛山四号线的第二十六座车站,车站位于桂澜路与季华七路交叉口处,车站为四号线与六号线换乘车站,四号线沿季华七路东西向敷设,六号线沿桂澜路南北向敷设。车站换乘方式为 T 型换乘,由于六号线南侧需设置折返线,且南侧区间距离曲线较近,故六号线跨路口设置,作为“T”型换乘的一横。同时,由于六号线带折返线,车站较长,故考虑其设置为地下两层,四号线设置在地下三层。周边现状主要有鹏瑞利广场,位于路口西南侧;路口东南侧已拆迁;路口西北侧已拆迁;加油站位于路口东北侧。
季华东路站为佛山四号线的第二十七座车站,车站站位设于平洲水道北侧,东环路与万科金域蓝湾西侧规划路交叉路口的北侧,沿规划路呈南北走向敷设于道路下方。周边现状东侧为万科金域蓝湾小区,位于路口东北侧;南侧为平洲水道,与东环路之间有水站及餐饮建筑;西北侧之前为大面积的厂房,现已完成拆迁。
平胜站为佛山四号线的第二十八座车站,车站位于平胜大桥的东侧,沿规划路呈东西向敷设,为地下二层站。站位周边现状是厂房和绿地,平胜大桥东侧有规划建设的南北向的广佛江珠城际铁路于本站与佛山四号线)瓜步站
瓜步站为佛山四号线的第二十九座车站,车站位于瓜步村北侧厂区内,沿规划道路东西向敷设于规划道路内。目前站位周边为厂房为主。
平南工业去站为佛山四号线的第三十座车站,车站位于三龙湾大道北侧地块内,沿三龙湾大道东西向敷设,预留与远期十号线换乘条件(通道换乘)。车站现状周边主要为厂房。
平顺东路站是佛山四号线第三十一座车站。车站位于广珠西线高速与三龙湾大道交叉口以西,沿东西方向敷设于三龙湾大道下。该站为预留站。车站周边主要为厂房、办公用房及部分平房。
三山新城南站为佛山四号线的第三十二座车站,车站位于泰山路与三龙湾大道交叉路口北侧,沿三龙湾大道呈东西向敷设,为地下三层站。站位周边现状主要有西北象限的三龙湾大道泵站,西南象限的高层公寓,施工场地,沿泰山路在建的南海新交通地面车站,沿三龙湾大道建成的下沉隧道。
港口路站为佛山四号线的第三十三座车站,车站位于三龙湾大道与港口路交叉口处,本站为四号线与拟建十一号线换乘站,四号线车站沿三龙湾大道路呈东西向敷设,为地下二层站;拟建十一号线车站沿港口路呈南北向敷设,为地下三层站。车站周边现状有黄猄涌、港口路大桥,公园绿地,暂无建筑物,沿三龙湾大道路中有正在施工建设的番海大桥。
大塱山停车场选址位于线路西端,西青大道尽头,269 省道东侧,大朗山村南侧;长约 1100m, 宽 227m,地块呈东西向布置,总用地面积约 17.95 公顷。
平胜车辆段选址位于平胜大道北侧呈东西向布置,长约 1040m,宽约 525m, 总占地面积约 27.8 公顷。周边现状为厂房、绿地等;规划为轨道交通用地等, 土规为城镇用地及园地。平胜车辆基地设 2 条出入段线,采用八字接轨方式,分 别从平南工业区站、瓜步站接轨,单线m。
特别声明:以上内容(如有图片或视频亦包括在内)为自媒体平台“网易号”用户上传并发布,本平台仅提供信息存储服务。
Notice: The content above (including the pictures and videos if any) is uploaded and posted by a user of NetEase Hao, which is a social media platform and only provides information storage services.
版权声明:本文由佛山厂房网发布,如需转载请注明出处。部份内容收集于网络,如有不妥之处请联系我们删除 400-0123-021 或 13391219793







